37B Marsden Street, Boorowa
Leisure
LANDMARK COUNTRY PUB/CAFE/RESTAURANT & ACCOMMODATION. BUSINESS & LIFESTYLE OPPORTUNITY
Flemings Boorowa is pleased to present the historic Boorowa Hotel to the market for sale.
This grand two-storey landmark has been a cornerstone of the community since 1880, standing tall at the southern end of Boorowa's business centre.
This wonderful hotel has been a source of livelihood and joy for its owners and their reluctant sale enables the opportunity for the incoming owners to enjoy the atmosphere, benefit from patronage and grow the business.
Located on one of the main thoroughfares heading west from the Hume Highway, only 1.5hr* drive from Canberra, this very inviting old double brick pub - with timber and wrought iron features - is the home to a busy food and beverage business and presents an exciting opportunity.
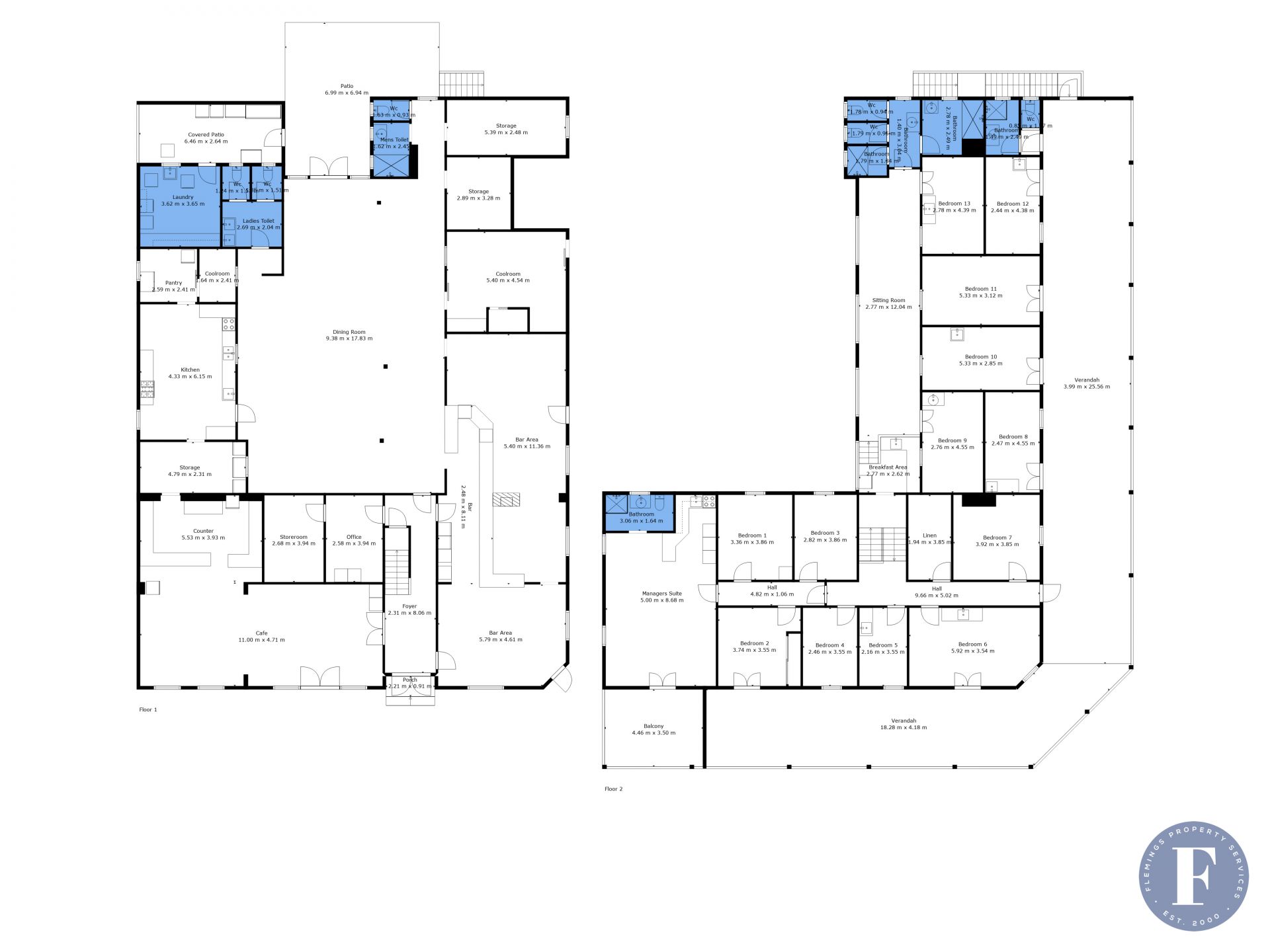
Locally known as the Top Pub the Boorowa Hotel is a favourite in the community with features including:
- Restaurant
- Cafe
- Dining and meeting areas
- 3 x public bars
- Accommodation
- Commercial kitchen
- Beer garden
- Alfresco dining
The accommodation aspect of the building includes 13 furnished rooms capable of hosting up to 40 guests.
The Boorowa Hotel sits on a main street lot consisting of approximately 934sqm and MU1 – Mixed Use.
The Boorowa Hotel is known for its warmth and hospitality, its original features, its Irish connection, its delicious food, its cold beer, the conversation and laughter and comfort that comes with being in an old country pub with excellent service.
An Information Memorandum, full list of inclusions and recent financial statements are available on request. Contact Flemings Boorowa for more details.
* = Approximate
All information contained here is gathered from sources we believe to be reliable. However, we cannot guarantee its accuracy, and interested parties should rely on their own enquiries
This grand two-storey landmark has been a cornerstone of the community since 1880, standing tall at the southern end of Boorowa's business centre.
This wonderful hotel has been a source of livelihood and joy for its owners and their reluctant sale enables the opportunity for the incoming owners to enjoy the atmosphere, benefit from patronage and grow the business.
Located on one of the main thoroughfares heading west from the Hume Highway, only 1.5hr* drive from Canberra, this very inviting old double brick pub - with timber and wrought iron features - is the home to a busy food and beverage business and presents an exciting opportunity.
Locally known as the Top Pub the Boorowa Hotel is a favourite in the community with features including:
- Restaurant
- Cafe
- Dining and meeting areas
- 3 x public bars
- Accommodation
- Commercial kitchen
- Beer garden
- Alfresco dining
The accommodation aspect of the building includes 13 furnished rooms capable of hosting up to 40 guests.
The Boorowa Hotel sits on a main street lot consisting of approximately 934sqm and MU1 – Mixed Use.
The Boorowa Hotel is known for its warmth and hospitality, its original features, its Irish connection, its delicious food, its cold beer, the conversation and laughter and comfort that comes with being in an old country pub with excellent service.
An Information Memorandum, full list of inclusions and recent financial statements are available on request. Contact Flemings Boorowa for more details.
* = Approximate
All information contained here is gathered from sources we believe to be reliable. However, we cannot guarantee its accuracy, and interested parties should rely on their own enquiries

