21 Caringa Road, Godfreys Creek
House
Tranquil Country Living at Godfreys Creek
Flemings Boorowa is pleased to present 21 Caringa Road, Godfreys Creek, to the market for sale.
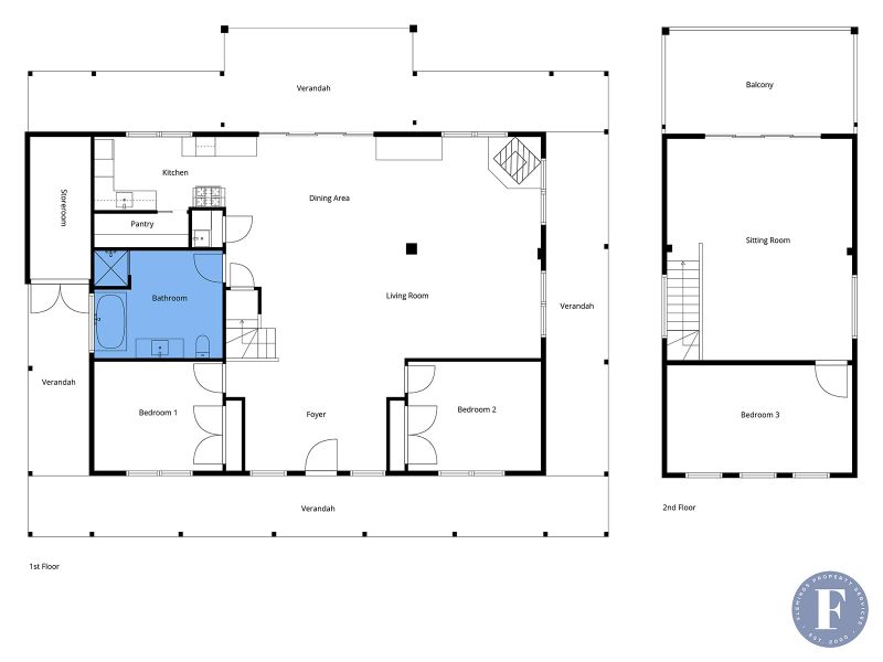
This property offers a charming two-storey home ideal for those seeking a relaxed country lifestyle or weekend escape.
Features include:
- Three bedrooms with built-in robes
- Two-storey layout with functional living spaces
- Spacious main living area with additional living space upstairs
- Walk-in pantry
- Central bathroom
- Slow combustion wood heater
- Additional living space upstairs
- Covered upstairs patio, perfect for enjoying scenic views
- Quiet location surrounded by nature
- 31km* from Boorowa, 56km* from Cowra
- 4.8 acres* block
Lifestyle Bonus:
The property is part of a neighbourhood agreement, established to protect the amenity and character of the area.This agreement gives access to approximately 283.28 hectares* (700 acres*) of shared native bushland*, ideal for bushwalking, bird-watching, and enjoying the natural Australian landscape.
A wonderful opportunity to enjoy space, privacy, and a true country lifestyle.
For further information or to arrange an inspection, contact Flemings Boorowa today!
*Approximately
** "All information contained here is gathered from sources we believe to be reliable. However, we cannot guarantee its accuracy and interested persons should rely on their own enquiries."
This property offers a charming two-storey home ideal for those seeking a relaxed country lifestyle or weekend escape.
Features include:
- Three bedrooms with built-in robes
- Two-storey layout with functional living spaces
- Spacious main living area with additional living space upstairs
- Walk-in pantry
- Central bathroom
- Slow combustion wood heater
- Additional living space upstairs
- Covered upstairs patio, perfect for enjoying scenic views
- Quiet location surrounded by nature
- 31km* from Boorowa, 56km* from Cowra
- 4.8 acres* block
Lifestyle Bonus:
The property is part of a neighbourhood agreement, established to protect the amenity and character of the area.This agreement gives access to approximately 283.28 hectares* (700 acres*) of shared native bushland*, ideal for bushwalking, bird-watching, and enjoying the natural Australian landscape.
A wonderful opportunity to enjoy space, privacy, and a true country lifestyle.
For further information or to arrange an inspection, contact Flemings Boorowa today!
*Approximately
** "All information contained here is gathered from sources we believe to be reliable. However, we cannot guarantee its accuracy and interested persons should rely on their own enquiries."
