91 Ryan Street, Galong
House
CHARACTER-FILLED HOME WITH RENOVATION POTENTIAL
Flemings Harden is pleased to present 91 Ryan Street, Galong to the market for sale.
Set on a generous 1330sqm* block with rear lane access, this charming clad home is brimming with character and renovation potential. Featuring cozy wood fires, a spacious garage, and beautifully manicured gardens, this property offers a rare opportunity to create your dream home in a peaceful location.
Features include:
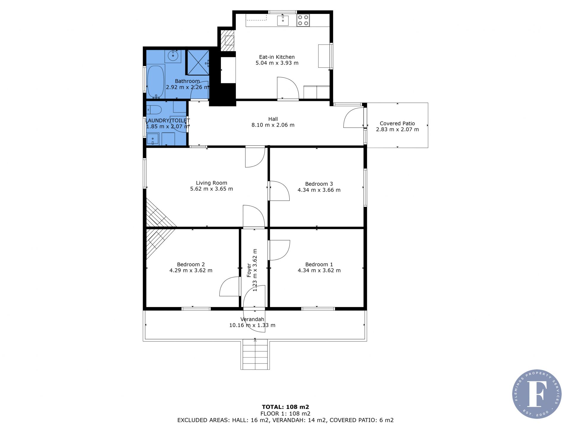
- Three good sized bedrooms
- Spacious eat-in kitchen with electric oven, stove, and slow combustion wood fire
- Inviting lounge room with Warm Ray wood-burning heater - perfect for winter evenings
- Bathroom with separate bathtub and shower
- Large garage, ideal for storage or a workshop
- Fully fenced yard, ensuring privacy and security
- Mature, well-manicured gardens, offering a peaceful retreat
- Spare paddock with potential to expand the garden or create additional outdoor spaces
- Rear lane access for added convenience
- Ideal project for renovators looking to add value and put their own stamp on a character-filled home
With endless potential and a peaceful setting, this property is perfect for those seeking a renovation project or a home with plenty of charm and space. Contact Flemings Harden today to arrange your inspection.
All information contained here is gathered from sources we believe to be reliable. However, we cannot guarantee its accuracy, and interested persons should rely on their own enquiries.
*=approximate
Set on a generous 1330sqm* block with rear lane access, this charming clad home is brimming with character and renovation potential. Featuring cozy wood fires, a spacious garage, and beautifully manicured gardens, this property offers a rare opportunity to create your dream home in a peaceful location.
Features include:
- Three good sized bedrooms
- Spacious eat-in kitchen with electric oven, stove, and slow combustion wood fire
- Inviting lounge room with Warm Ray wood-burning heater - perfect for winter evenings
- Bathroom with separate bathtub and shower
- Large garage, ideal for storage or a workshop
- Fully fenced yard, ensuring privacy and security
- Mature, well-manicured gardens, offering a peaceful retreat
- Spare paddock with potential to expand the garden or create additional outdoor spaces
- Rear lane access for added convenience
- Ideal project for renovators looking to add value and put their own stamp on a character-filled home
With endless potential and a peaceful setting, this property is perfect for those seeking a renovation project or a home with plenty of charm and space. Contact Flemings Harden today to arrange your inspection.
All information contained here is gathered from sources we believe to be reliable. However, we cannot guarantee its accuracy, and interested persons should rely on their own enquiries.
*=approximate
