113 Wallendoon Street, Cootamundra
Land
Prime Development Opportunity
Flemings Cootamundra are pleased to offer an exceptional opportunity at 113 Wallendoon Street, Cootamundra to the market for sale via expressions of interest.
This versatile property, steeped in historical significance as it was previously occupied by Holden Motors for a number of years, offers a rare blend of mixed-use potential nestled in the heart of Cootamundra.
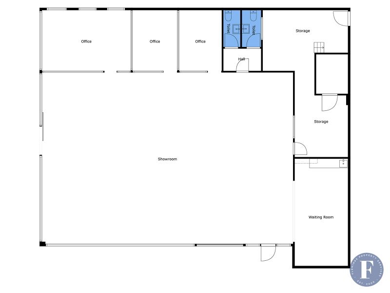
Situated on level terrain, the property boasts a substantial showroom, three expansive industrial sheds/workshops, two fully equipped offices with accompanying amenities, and a generously sized yard area.
With a zoning of E2 - Commercial Centre, the canvas for development is broad, encompassing possibilities such as hotel or motel accommodation, shop-top housing, amusement centers, child care facilities, commercial premises, and function centers.
Key Features:
- Sprawling 4,612sqm* total land area
- 2,650sqm* total building area with high exposure to passing traffic
- 300sqm* of high quality showroom with associated office and amenities
- 1,100sqm* secure yard
- Expansive warehousing/workshop areas with high-clearance and rear lane access
- Three street frontages
- Strategically positioned in the heart of Cootamundra's CBD
- Ideal for investors, occupiers, or developers seeking to maximise value
With three street frontages, this property offers flexibility for developers or occupiers, providing various access points and layout options to suit diverse needs.
This property is an unparalleled investment opportunity, offering endless potential in a prime location. For further details, please contact Flemings Cootamundra.
*approx
"All information contained here is gathered from sources we believe to be reliable. However, we cannot guarantee its accuracy and interested persons should rely on their own enquiries."
This versatile property, steeped in historical significance as it was previously occupied by Holden Motors for a number of years, offers a rare blend of mixed-use potential nestled in the heart of Cootamundra.
Situated on level terrain, the property boasts a substantial showroom, three expansive industrial sheds/workshops, two fully equipped offices with accompanying amenities, and a generously sized yard area.
With a zoning of E2 - Commercial Centre, the canvas for development is broad, encompassing possibilities such as hotel or motel accommodation, shop-top housing, amusement centers, child care facilities, commercial premises, and function centers.
Key Features:
- Sprawling 4,612sqm* total land area
- 2,650sqm* total building area with high exposure to passing traffic
- 300sqm* of high quality showroom with associated office and amenities
- 1,100sqm* secure yard
- Expansive warehousing/workshop areas with high-clearance and rear lane access
- Three street frontages
- Strategically positioned in the heart of Cootamundra's CBD
- Ideal for investors, occupiers, or developers seeking to maximise value
With three street frontages, this property offers flexibility for developers or occupiers, providing various access points and layout options to suit diverse needs.
This property is an unparalleled investment opportunity, offering endless potential in a prime location. For further details, please contact Flemings Cootamundra.
*approx
"All information contained here is gathered from sources we believe to be reliable. However, we cannot guarantee its accuracy and interested persons should rely on their own enquiries."
