1 Elizabeth Street, Cootamundra
House
Invest or Nest - Quality Family Home
Flemings Cootamundra is pleased to present 1 Elizabeth Street, Cootamundra to the market for sale.
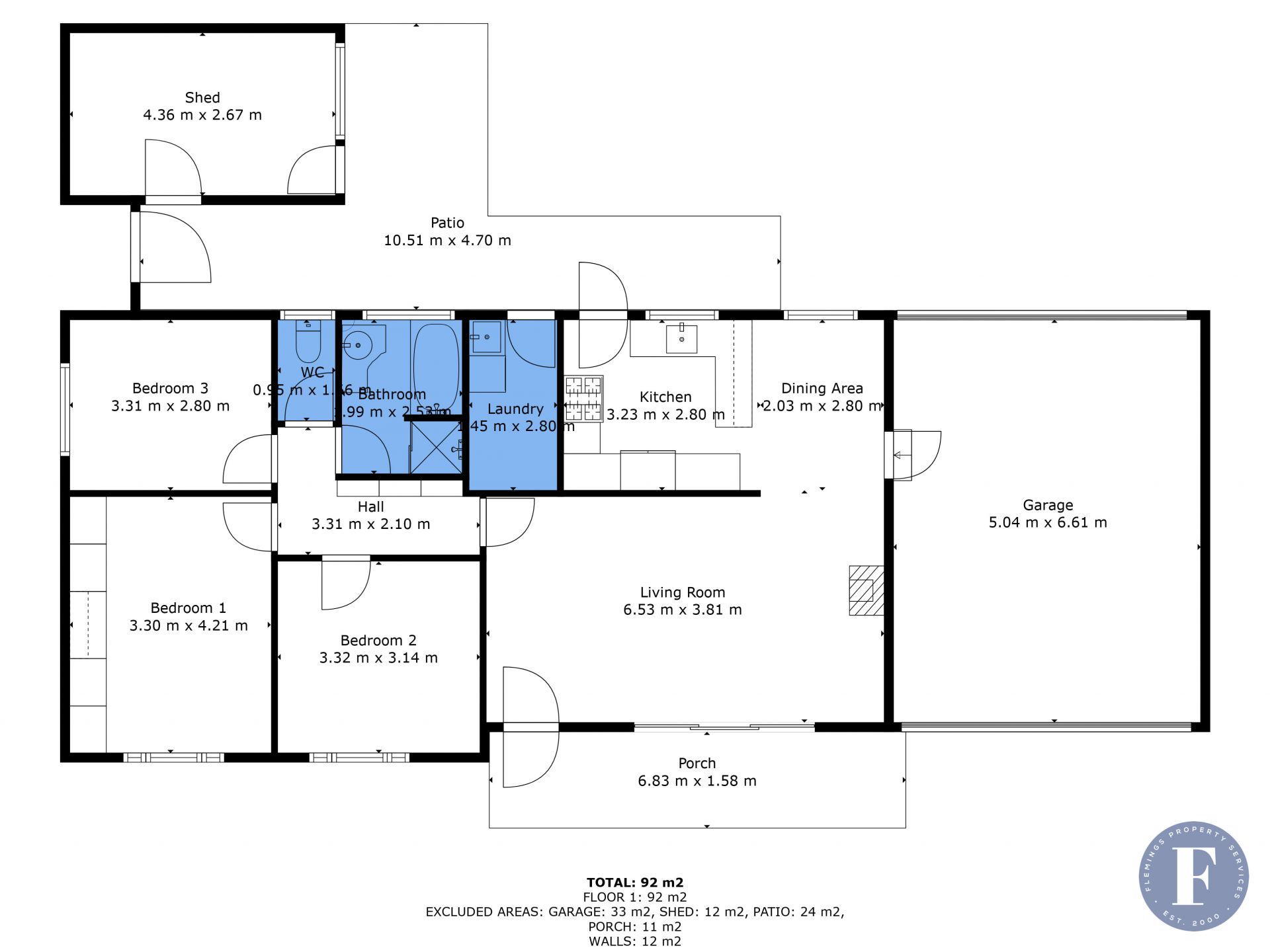
This comfortable family home offers a practical floor plan with added extras to suit a variety of buyers. Whether you're looking for your first home, an investment, or a property with plenty of potential, this home ticks the boxes.
Features Include:
- Main bedroom with built-in robe and split system air conditioning
- Two additional bedrooms
- Living room with split system and imitation gas wood fire
- Combined kitchen and dining space adjacent to the living room
- Main bathroom featuring shower over bath, single vanity and separate toilet
- Double car garage with internal access
- Workshop with power connected
- Concrete pad for a caravan or additional parking
- Potential rent of $380pw
- Situated 450m* from the primary school, 750m* to the high school and just 1km* from the CBD
This property presents the ideal blend of practicality and scope, making it a standout opportunity for both owner occupiers and investors.
Contact Flemings Cootamundra today to arrange an inspection!
* = approximately
All information contained here is gathered from sources we believe to be reliable. However, we cannot guarantee its accuracy and interested persons should rely on their own enquiries.
This comfortable family home offers a practical floor plan with added extras to suit a variety of buyers. Whether you're looking for your first home, an investment, or a property with plenty of potential, this home ticks the boxes.
Features Include:
- Main bedroom with built-in robe and split system air conditioning
- Two additional bedrooms
- Living room with split system and imitation gas wood fire
- Combined kitchen and dining space adjacent to the living room
- Main bathroom featuring shower over bath, single vanity and separate toilet
- Double car garage with internal access
- Workshop with power connected
- Concrete pad for a caravan or additional parking
- Potential rent of $380pw
- Situated 450m* from the primary school, 750m* to the high school and just 1km* from the CBD
This property presents the ideal blend of practicality and scope, making it a standout opportunity for both owner occupiers and investors.
Contact Flemings Cootamundra today to arrange an inspection!
* = approximately
All information contained here is gathered from sources we believe to be reliable. However, we cannot guarantee its accuracy and interested persons should rely on their own enquiries.

