8B Old Temora Road, Young
Industrial
Versatile Industrial Premises with Exceptional Facilities
Flemings Young is pleased to present 8b Old Temora Road, Young to the market for sale. This impressive industrial premises offers a rare combination of substantial shed space, quality office and showroom facilities, and modern amenities-perfectly suited to a wide range of business operations.
Features:
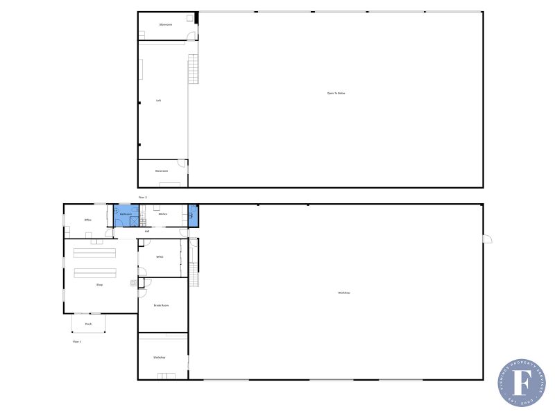
- Expansive 36m* x 18m* shed with high clearance
- Three 6m* wide bays, each with remote-controlled roller doors
- 5.4m* internal height, ideal for machinery, storage or workshop use
- Showroom area to professionally display products or services
- Conference room and reception area for client and staff use
- Multiple office spaces throughout for team functionality
- Evaporative cooling and ducted vacuum system installed
- Natural gas heating
- Upstairs mezzanine with two offices and additional storage space
- Modern kitchen and bathroom facilities for staff convenience
This highly functional and well-maintained property offers an exceptional opportunity for owner-occupiers or investors seeking industrial space with professional infrastructure in place.
Call the team at Flemings Young today to arrange your private inspection!
= Approximate
"All information contained here is gathered from sources we believe to be reliable. However, we cannot guarantee its accuracy and interested persons should rely on their own enquiries."
Features:
- Expansive 36m* x 18m* shed with high clearance
- Three 6m* wide bays, each with remote-controlled roller doors
- 5.4m* internal height, ideal for machinery, storage or workshop use
- Showroom area to professionally display products or services
- Conference room and reception area for client and staff use
- Multiple office spaces throughout for team functionality
- Evaporative cooling and ducted vacuum system installed
- Natural gas heating
- Upstairs mezzanine with two offices and additional storage space
- Modern kitchen and bathroom facilities for staff convenience
This highly functional and well-maintained property offers an exceptional opportunity for owner-occupiers or investors seeking industrial space with professional infrastructure in place.
Call the team at Flemings Young today to arrange your private inspection!
= Approximate
"All information contained here is gathered from sources we believe to be reliable. However, we cannot guarantee its accuracy and interested persons should rely on their own enquiries."
